
de bouw van een droomplek aan het water.
Op 31 januari 2007 worden Jort en Roos de trotse eigenaar van de Richard Jungweg 2 te Rotsterhaule. Het is een groot project: van arbeiderswoning met schuur naar droomlocatie aan het water. Wij zijn nu bijna 20 jaar onderweg en weer verder. Stap voor stap. De stip op de horizon is ruim geformuleerd. Het pad er naartoe wordt bij elke stap weer helder. Samenwonen, samenwerken maakt samenleven tot iets heel tastbaars.
een droomplek aan het water












de sloop van een schuur
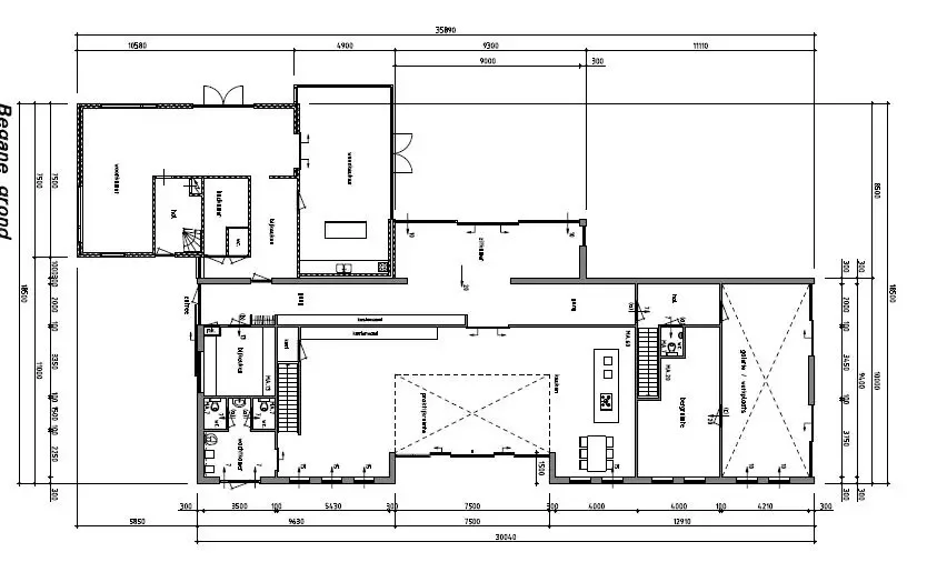
Het bestemmingsplan is aangepast, het ontwerp is op papier gezet en de vergunningen zijn binnen.
Voor ons staat 2020 niet alleen in het teken van Corona. We gaan slopen.
De planning is dat er begin april 2021 een start wordt gemaakt met de bouw van de Kiemschuur.

























Het fundament
Op dinsdag 6 april 2021 is dan het grote moment daar. De piketpaaltjes zijn geslagen. Het fundament van de Kiemschuur wordt zichtbaar, de funderingspalen gaan de grond in. Nu draagkracht creëren













de muren geven richting
Na het leggen van de fundering kan je bouwen. Stevigheid creëren. Vanuit een stevige basis krijgt de Kiemschuur langzaam vorm





















de Kiemschuur
van vorm naar inhoud






















